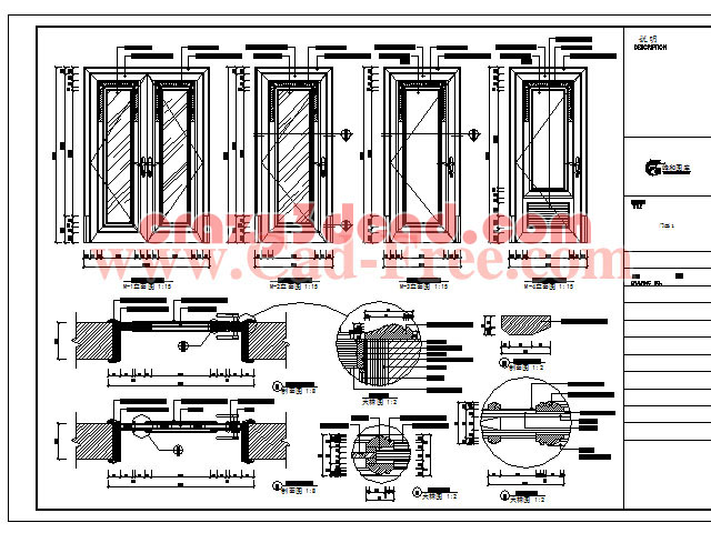
A variety of door CAD GalleryFree Download Link: Download Cad Files Crazy3DCad.com » A variety of door CAD Gallery doordoor Gallery Previous9 kinds of modern door CAD blocks NextAluminum door CAD blocks Related Recommend wrought iron railing cad blocksWrought iron pattern door CAD blocksWrought iron door CAD blocksWooden door CAD detailsWindow and door cad drawingsWalnut glass door CAD drawingsVilla Iron Gate CAD DetailsVilla door CAD drawings CommentGrab the Comment Cancel 有人回复时邮件通知我 Submit Comments name (Required) E-mail (Required)